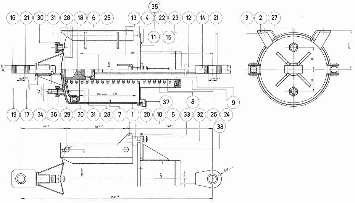
Bremszylinder 10"
BZ 10 W

- Ersatzteil oder Gerät anfragen -
Klick auf die Zeichnungsnummer zeigt Informationen zum Ersatzteil
| Pos. | Anzahl | Benennung | Zeichnungsnummer |
|
|---|---|---|---|---|
| 0 | 1 | Kolbenstangenauge | K 10 B-3 | |
| 0 | 1 | Moosgummipfropfen Ø8 | Ø8x5 | |
| 1 | 1 | Zylinder | BZ 10-1 | |
| 2 | 2 | Tragwinkel | BZ 10-2 | |
| 3 | 4 | Rippe | BZ 10-10 | |
| 4 | 1 | Deckel | BZ 10-112 | |
| 5 | 2 | Lappen | BZ 10-16/H | |
| 6 | 1 | Kolbenplatte | BZ 10-17 | |
| 7 | 1 | Manschette 10" | BZ 10-18 | |
| 8 | 1 | Feder | BZ 10-27 | |
| 9 | 1 | Scheibe | DBZ 614-43 | |
| 10 | 2 | Vierkantschraube M16x60 | BZ 10-100 | |
| 11 | 1 | Bezeichnungsschild | BZ 10-111 | |
| 12 | 1 | Kolbenstange | BZ 10-54 | |
| 13 | 1 | Kolbenstangenkugel | K 10 B-2 | |
| 15 | 1 | Führungsbuchse | DBZ 614-44 | |
| 16 | 1 | Hebelträger | BZ 12-3 | |
| 17 | 1 | Lager | BZ 12-4 | |
| 18 | 4 | Stützblech | BZ 12-5 | |
| 20 | 2 | Schelle | BZ 12-9 | |
| 21 | 2 | Walterbüchse mit Keil | Wb 40/30.4x30/K | |
| 22 | 1 | Haubenrohr | BZ 12-13 | |
| 23 | 1 | Halsstutzen | BZ 12-103/H | |
| 24 | 1 | Federring | BZ 12-15 | |
| 25 | 1 | Pfanne | BZ 12-20 | |
| 26 | 1 | Kolbenrohr kompl. | BZ 12-21 | |
| 27 | 1 | Deckscheibe | BZ 12-23 | |
| 28 | 2 | Stutzen 1/2" | 12 639-1.0 | |
| 29 | 1 | Bördelstutzen NW 1/2" | 12 639-2 | |
| 30 | 2 | Überwurfmutter NW 1/2" | 12 639-3 | |
| 31 | 2 | Dichtring | 12 639-6 | |
| 32 | 2 | Sechskantmutter M16 vz | SKM M16 | |
| 33 | 2 | Federring A16 vz | FR A16 | |
| 34 | 1 | Splint | SP 8x50 | |
| 35 | 2 | Kerbnagel | KN 3x5/St | |
| 36 | 1 | Gewindeschutzpf.G1/2 | 10 196 | |
| 37 | 1 | Winkelstück R1/8"DIN 1569 | WST R1/8" | |
| 38 | 2 | Versteifung | BZ 12-17/H |

