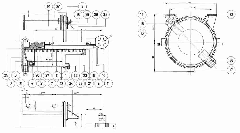
cilindro de frenos
BZ 10 Z

- pedir pieza de repuesto -
Haga Click sobre el número para más información sobre la pieza de repuesto
| pos. | cant. | desig. | número |
|
|---|---|---|---|---|
| 0 | 1 | Gewindeschutzpf.G3/4 | 10 245 | |
| 0 | 1 | Moosgummipfropfen Ø8 | Ø8x5 | |
| 1 | 1 | Deckel B/1-9 | BZ 10-113 | |
| 2 | 2 | Lappen | BZ 10-16/H | |
| 3 | 1 | Kolbenplatte | BZ 10-17 | |
| 4 | 1 | Manschette 10" | BZ 10-18 | |
| 5 | 1 | Scheibe | DBZ 614-43 | |
| 6 | 1 | Boden | BZ 10-79 | |
| 7 | 1 | Zylinder | BZ 10-80 | |
| 8 | 1 | Kolbenrohr | BZ 10-70 | |
| 9 | 1 | Kolbenstange | BZ 10-71 | |
| 10 | 1 | Kolbenstangenauge | BZ 10-72 | |
| 11 | 1 | Büchse | BZ 10-73 | |
| 12 | 1 | Ring | BZ 10-74 | |
| 13 | 2 | Tragwinkel | BZ 10-75 | |
| 15 | 1 | Spannrippe | BZ 10-76 | |
| 16 | 3 | Rippe | BZ 10-77 | |
| 17 | 1 | Anschlußstutzen | BZ 10-78 | |
| 18 | 2 | Vierkantschraube M16x60 | BZ 10-100 | |
| 19 | 1 | Bezeichnungsschild | BZ 10-111 | |
| 20 | 1 | Kolbenstangenkugel | K 10 B-2 | |
| 21 | 1 | Bolzen | K 10 B-4/H | |
| 22 | 1 | Haubenrohr | BZ 8-50 | |
| 23 | 1 | Halsstutzen | BZ 12-103 | |
| 24 | 1 | Federring | BZ 12-15 | |
| 25 | 1 | Pfanne | BZ 12-20 | |
| 26 | 1 | Schelle | BZ 12-45 | |
| 27 | 1 | resorte | BZ 12-79 | |
| 28 | 2 | tuerca hexagonal | SKM M16 | |
| 29 | 2 | anillo elástico | FR A16 | |
| 30 | 2 | Halbrundkerbnagel | KN 3x5 | |
| 32 | 1 | Führungsbuchse | DBZ 614-44 | |
| 33 | 1 | Winkelstück R1/8"DIN 1569 | WST R1/8" | |
| 34 | 2 | Versteifung | BZ 10-114 |
