cilindro de frenos
BZ 14 D5
N 029 505

- pedir pieza de repuesto -
Haga Click sobre el número para más información sobre la pieza de repuesto
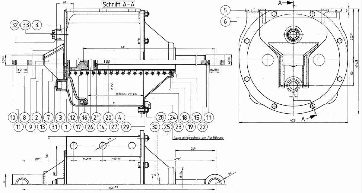
| pos. | cant. | desig. | número |
|
|---|---|---|---|---|
| 0 | 1 | Kolbenst.kompl.geschw. | BZ 14-109 | |
| 0 | 1 | Zylinder kompl.geschw. | BZ 14-89 | |
| 0 | 1 | Tragrahmen kompl.geschw. | BZ 14-93 | |
| 0 | 2 | Walterbüchsenkeil | Keil 4x45/H | |
| 0 | 2 | Walterbüchse | Wb 50/41x40 | |
| 0 | 1 | Moosgummipfropfen Ø8 | Ø8x5 | |
| 1 | 1 | Zylinder | BZ 14-90 | |
| 2 | 1 | Zentrierscheibe | BZ 14-106 | |
| 3 | 2 | Anschlußstutzen | BZ 14-105 | |
| 4 | 1 | Spannring | DBZ 614-55 | |
| 5 | 2 | Tragwinkel Li.u.Re. | BZ 14-94 | |
| 7 | 1 | Zentrierplatte | BZ 14-95 | |
| 8 | 1 | Rippe | BZ 16-88 | |
| 9 | 2 | Rippe | BZ 16-89/H | |
| 10 | 1 | Hebelträger | BZ 14-107 | |
| 12 | 1 | Kolbenplatte | BZ 14-18 | |
| 13 | 1 | Pfanne | BZ 12-20 | |
| 14 | 1 | Kolbenrohr | BZ 14-98 | |
| 15 | 1 | Federring | BZ 12-15 | |
| 16 | 1 | Manschette | 14 708 | |
| 17 | 1 | resorte | DBZ 614-16 | |
| 18 | 1 | Scheibe | DBZ 614-43 | |
| 19 | 1 | Führungsbuchse | DBZ 614-44 | |
| 20 | 1 | Kolbenstange | BZ 14-110 | |
| 21 | 1 | Kolbenstangenkugel | K 10 B-2 | |
| 22 | 1 | Kolbenstangenauge | BZ 12-135 | |
| 23 | 1 | Deckel | DBZ 614-51 | |
| 24 | 1 | Winkelstück R1/8"DIN 1569 | WST R1/8" | |
| 25 | 1 | Bezeichnungsschild | BZ 10-111 | |
| 26 | 1 | Bolzen | K 10 B-4/H | |
| 27 | 8 | tornillo de cabeza hexagonal | SKS M12x35 | |
| 28 | 8 | tuerca hexagonal | SKM M12 | |
| 29 | 8 | anillo elástico | FR A12 | |
| 30 | 2 | Halbrundkerbnagel | KN 3x5 | |
| 31 | 1 | Gewindeschutzkappe | 10 312 | |
| 32 | 1 | Dichtring A33x41x2 | DR A33 | |
| 33 | 1 | Verschlußschraube DIN 910 | VSS G1" |
