Anzeigevorrichtung
EAV 42
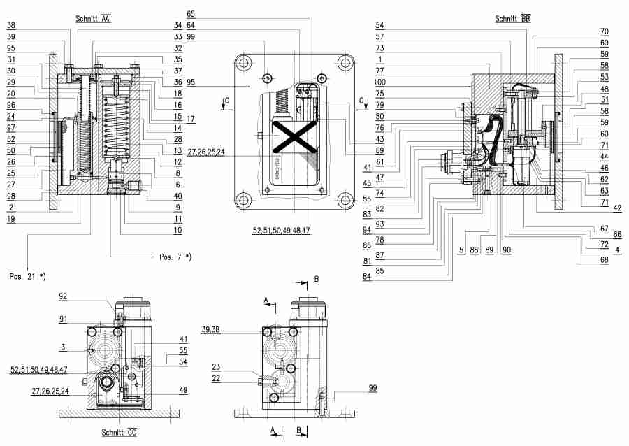
N 016 122


- rezervni dio ili aparat -
Klik na broj nacrta pokazuje informaciju za rezervni dio
| Pozicija | Kolicina | Naziv | Broj nacrta |
|
|---|---|---|---|---|
| 0 | 1 | Kolben | AV 61-3/H | |
| 0 | 1 | Scheibe | AV 61-4/H | |
| 0 | 1 | Federauflage | AV 61-5/H | |
| 0 | 1 | Druckfeder | AV 70-14 | |
| 0 | 1 | Sechskantschraube | AV 70-30 | |
| 0 | 1 | Anzeigeschild Vormontage | AV 70-4 | |
| 0 | 2 | Senkopf-Blindniete | BN 3x8/St | |
| 0 | 1 | Deckel komplett | EAV 41-18 | |
| 0 | 1 | Antriebseinheit komplett | EAV 41-20/K | |
| 0 | 1 | Gehäuse komplett | EAV 42-01 | |
| 0 | 1 | Deckel | EAV 42-21 | |
| 0 | 1 | Sicherungsring DIN 472 | SR J30x1.2/vz | |
| 0 | 1 | P-Touch | Typenschild | |
| 7 | 2 | Kolbendichtung | AV 61-14 | |
| 8 | 1 | Kugel INOX Ø5 | Kugel Ø 5 | |
| 9 | 1 | O-Ring | OR | |
| 11 | 1 | Sicherungsring | SR J24x1.2/A2 | |
| 13 | 1 | Druckfeder | AV 61-6 | |
| 14 | 1 | Federauflage | AV 61-7/H | |
| 15 | 1 | Scheibe | EAV 42-03 | |
| 16 | 1 | Sicherungsring | SR J40x1.75/A2 | |
| 17 | 1 | Gewindestift | EAV 42-7 | |
| 18 | 1 | Sechskantmutter A2 | SKM M6/A2 | |
| 19 | 1 | Kolben | EAV 42-8 | |
| 20 | 1 | Spannstift | SPS 2.5x5 | |
| 23 | 1 | Federscheibe | FS B6/A2 | |
| 28 | 1 | O-Ring | OR | |
| 29 | 1 | Sicherungsring | SR A19x1.2/A2 | |
| 31 | 1 | Zentrierbolzen | AV 70-15/H | |
| 33 | 1 | Ring | AV 70-16/H | |
| 34 | 1 | Gummischeibe | AV 70-17/H | |
| 35 | 1 | O-Ring | OR | |
| 36 | 1 | O-Ring | OR | |
| 37 | 1 | Deckel | EAV 42-04 | |
| 38 | 4 | Sechskantschraube | SKS M6x20/A2 | |
| 39 | 4 | Federring | FR B6/A2 | |
| 56 | 2 | Senkschraube | SS M4x10 | |
| 88 | 1 | Spannscheibe | SPS K5 | |
| 89 | 1 | Scheibe A5,3 | SCH 5.3 | |
| 90 | 1 | Sechskantschraube | SKS M5x10/A2 | |
| 91 | 2 | Zylinderschraube | ZSR M4x12/A2 | |
| 92 | 2 | Federscheibe | FS A4/A2 | |
| 93 | 4 | Sechskantschraube DIN 933 | SKS M5x20 | |
| 94 | 4 | Federring A5 | FR A5 | |
| 96 | 1 | O-Ring | OR | |
| 97 | 1 | Staubschutz | AV 10-6C | |
| 98 | 1 | Dichtung | AV 56-108 | |
| 99 | 4 | Senkschraube | SS M6x25/7991 VIRAJ |
