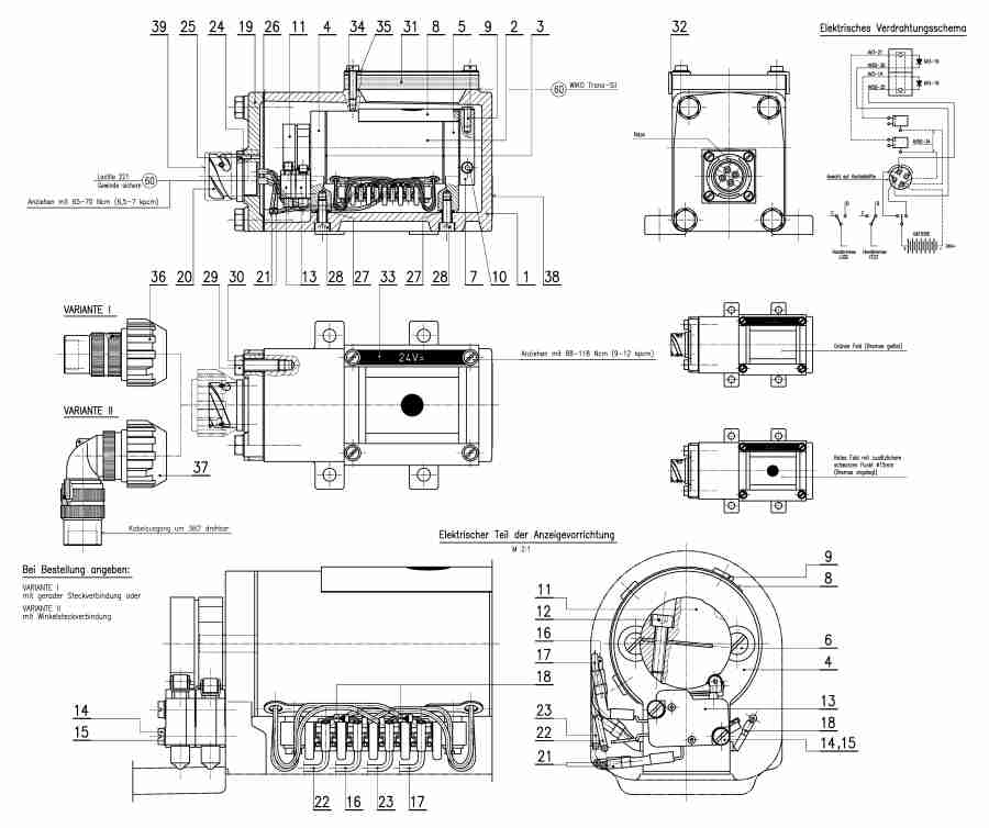
Anzeigevorrichtung 24 V
AV 50-08/II
N 016 051

- rezervni dio ili aparat -
Klik na broj nacrta pokazuje informaciju za rezervni dio
| Pozicija | Kolicina | Naziv | Broj nacrta |
|
|---|---|---|---|---|
| 0 | 1 | Gewindeschutzpf.G1/2 | 10 196 | |
| 0 | 1 | Sockel | AV 3-24 | |
| 0 | 1 | Klemmleiste | AV 3-25 | |
| 0 | 1 | Deckel | AV 50-33 | |
| 0 | 1 | Anzeigeschild | AV 50-45 | |
| 0 | 1 | Chassis Vormontage | AV 50-47 | |
| 0 | 1 | Klebeschild | AV 50-48 dünn | |
| 0 | 2 | Zwischenplatte | E 100.581 | |
| 0 | 1 | Schild | E 100.813 | |
| 0 | 2 | Zylinderschraube M3x12 | ZSR M3x12 | |
| 0 | 2 | cilindrični šaraf | ZSR M3x12 PA | |
| 1 | 1 | Gehäuse | AV 50-1 | |
| 2 | 1 | Umkehrdrehmagnet UD59-B00 | AV 3-17 | |
| 3 | 2 | Zwischenplatte | AV 3-5 | |
| 4 | 2 | Befestigung | AV 3-3 | |
| 6 | 4 | Senkschraube M4x12 | SS M4x12 | |
| 7 | 1 | Scheibe | AV 3-6/H | |
| 9 | 3 | Blindniete | BN/St 4x12 | |
| 10 | 1 | cilindrični šaraf | ZSR M4x20 | |
| 11 | 1 | Nockenscheibe | AV 3-8 | |
| 12 | 1 | cilindrični šaraf | ZSR M4x16/912 | |
| 13 | 2 | Mikroschalter | AV 56-8 | |
| 14 | 2 | cilindrični šaraf | ZSR M3x30 | |
| 15 | 2 | Federscheibe A3 | FS A3 | |
| 20 | 1 | Chassis 4-polig | AV 50-41 | |
| 24 | 1 | Dichtung | AV 41-2 | |
| 25 | 4 | Senkschraube | SS M3x10 | |
| 26 | 1 | Dichtung | AV 5-3 | |
| 27 | 2 | O-Ring | OR | |
| 28 | 2 | cilindrični šaraf | ZSR M6x16 | |
| 29 | 4 | Sechskantschr. M8x25 | SKS M8x25 | |
| 30 | 4 | Federscheibe B8 | FS B8 | |
| 31 | 1 | Staubschutz | AV 50-8 | |
| 32 | 2 | Winkel | AV 50-7/H | |
| 33 | 1 | Schild | AV 50-40 | |
| 34 | 4 | cilindrični šaraf | ZSR M5x20/A2 | |
| 35 | 4 | Federscheibe | FS B5/A2 | |
| 37 | 1 | Winkelstecker 4-pol. | AV 50-43 | |
| 39 | 1 | Gewindeschutzkappe | 50 300 |
