indicator devices
AV 05


- inquire spare part or device -
Click on drawing number for information about spare part
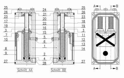
| pos. | count | name | drawing number |
|
|---|---|---|---|---|
| 0 | 1 | Case | AV 70-1 | |
| 0 | 1 | Ring | AV 70-16/H | |
| 0 | 1 | Winkel | AV 70-5/H | |
| 0 | 4 | Senkopf-Blindniete | BN 3x8/St | |
| 0 | 1 | Schild | E 100.813 | |
| 2 | 2 | Kolben | AV 70-2/H | |
| 3 | 2 | Spannstift | SPS 2.5x5 | |
| 4 | 2 | Nutring | AV 70-3 | |
| 5 | 2 | Sechskantschraube | SKS AM6x20 | |
| 6 | 5 | Federscheibe B6 | FS B6 | |
| 8 | 1 | Schild | AV 70-7/H | |
| 11 | 1 | Winkel | AV 70-9/H | |
| 12 | 1 | Schild | AV 70-11 | |
| 13 | 2 | Klebeschild | AV 70-12 | |
| 15 | 2 | O-Ring | OR | |
| 16 | 2 | Sicherungsring | SR A19x1.2/A2 | |
| 17 | 1 | spring | AV 70-13 | |
| 18 | 1 | spring | AV 70-14 | |
| 19 | 2 | Zentrierbolzen | AV 70-15/H | |
| 20 | 2 | Sicherungsring | SR J31x1.2/A2 | |
| 22 | 2 | Gummischeibe | AV 70-17/H | |
| 23 | 2 | O-Ring | OR | |
| 24 | 1 | Lid | AV 70-18/H | |
| 25 | 3 | Sechskantschraube | SKS M6x16 | |
| 27 | 1 | O-Ring | OR | |
| 28 | 2 | Gewindeschutzkappe | 10 119 |
