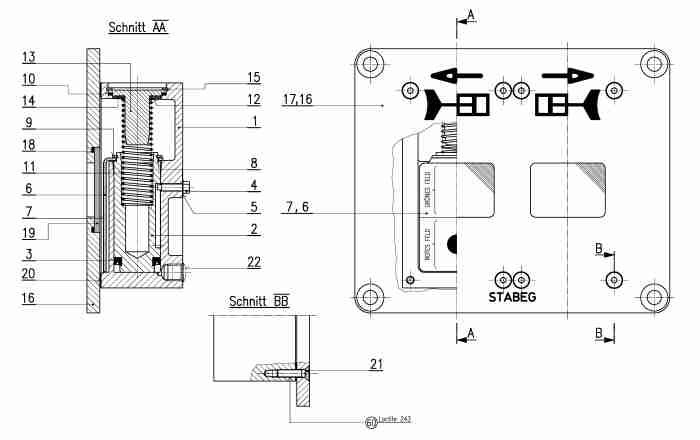
double indicator device
AV 20-01
N 016 132

- inquire spare part or device -
Click on drawing number for information about spare part
| pos. | count | name | drawing number |
|
|---|---|---|---|---|
| 0 | 2 | Klebeschild | AV 10-12/dünn | |
| 0 | 2 | O-Ring | OR | |
| 0 | 2 | O-Ring | OR | |
| 0 | 2 | O-Ring | OR | |
| 1 | 2 | Case | AV 14-1 | |
| 2 | 2 | Kolben | AV 01-3/H | |
| 3 | 2 | Nutring, NBR 60 | AV 10-7A | |
| 4 | 2 | Sechskantschraube | SKS AM6x20 | |
| 5 | 2 | Federscheibe B6 | FS B6 | |
| 6 | 2 | Anzeigeschild | AV 10-5/H | |
| 9 | 2 | Sicherungsring | SR A32x1.5/A2 | |
| 11 | 2 | spring | AV 2-5B | |
| 12 | 2 | Washer | AV 10-10 | |
| 13 | 2 | Lid | AV 14-3/H | |
| 14 | 2 | Gummischeibe | AV 2-11 | |
| 15 | 2 | Sicherungsring | SR J43x1,75/A2 | |
| 16 | 1 | Lid | AV 1070-6 | |
| 17 | 1 | Klebeschild | AV 101-3 | |
| 19 | 2 | Staubschutz | AV 70-26 | |
| 20 | 2 | gasket | AV 56-100 | |
| 21 | 8 | Senkschraube | SS M6x25/7991 VIRAJ | |
| 22 | 2 | Gewindeschutzkappe | 10 119 |
